The idea behind Basecamp is simple: 25 graciously conceived townhomes, born of the natural wonder and beauty of Central Oregon, brought to the best and most walkable location in town. One block from the Deschutes, and minutes on foot to Downtown Bend or the Old Mill.
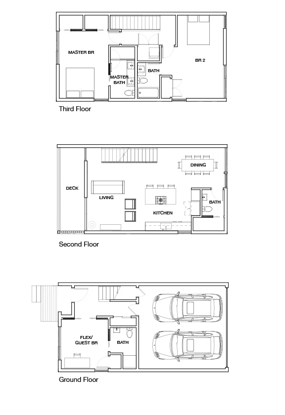
Unit B - Tumalo
An open, light-filled space for modern living. A covered deck spanning the entire width of the home for indoor outdoor living. Crafted with authentic materials and beautiful details.
Starting at $669,000
3 Bed / 3.5 Bath
Includes Studio Apartment on ground floor
Covered Deck off main living floor
1,552 sf townhome + 212 sf studio
1,764 Total
Other Features
Pre-wired for high-speed internet, whole-home audio/ video, security
Two car garages plus two additional parking spaces
Premium finishes and appliances
Sustainability: Certified Earth-Advantage Platinum
Central landscaped amenity area with outdoor dining area and campfire

